LDK /23畳もある広々としたLDKは、生活の拠点となる場所。キッチンにはIHや食器洗浄器、サイクロンフードを取り入れ、家事労働の軽減を図ると共に、複数人で作業をしても動線が重ならない余裕あるレイアウトとしました。
リフォームの経緯
同じお金を掛けるのであれば、楽しくお得に暮らせるリノベーションが面白い! そうした想いに加え、生まれたばかりのお子様、奥様と「楽しく格好良く暮らしたい!」というA様がお持ちのイメージも共有し、低予算で思い通りの空間作りを実現できる「中古物件+リノベーション」を選ばれました。中古物件探し、資金繰り、リノベーションプランまで、トータルマネージメントをご要望されました。
リフォームのポイント
●中古物件購入、資金繰り、物件の安全性といった部分は、建築士がフォローをして、より理想に近い、そしてコストパフォーマンスの良い物件購入をご案内しました。
●リノベーションのイメージは、3Dを使った空間提案を行い、実際の広さ感や動線、デザインの部分を事前に見える化してイメージ確認をご依頼し、イメージ共有に努めました。
●リノベーションのイメージは、3Dを使った空間提案を行い、実際の広さ感や動線、デザインの部分を事前に見える化してイメージ確認をご依頼し、イメージ共有に努めました。
浴室 / 予算繰りをし、水回りにしっかり費用を回して、満足度の高いリフォームに。
キッチン / ハイバックカウンター、カップボードなどの使い勝手やデザインが気に入られたというキッチンBerry。レンジフードなどのお手入れはとても簡単!という点が決め手でした。
お施主さまからひとこと
今回のリノベーションで求めたのは、「格好良く」「楽しく」というライフスタイルに加え、家事の省力化の実現でした。マルモコハウスさんのお力により、快適な広い空間で、ゆとりある暮らし方ができる家となりました。デザインの過程も一緒に楽しめたことも良かったです。限られた予算の中、物件取得費用などでコスト削減を行い、最新の水回り設備を妥協することなく入れられ、大満足の内容となりました。特に毎日使うキッチンやお風呂は、掃除やメンテナンス、使い勝手の良さが重要。実家でも愛用しているトクラス製品は憧れで、デザインや機能、使い勝手の良さがとても気に入っています。これらの生活が楽しみです!
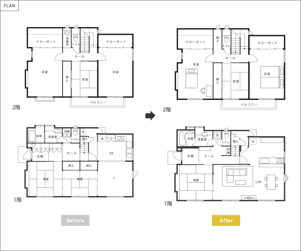
築35年の2階建戸建住宅をご購入、中古物件をリノベーションしての住み替えとなりました。
| リフォーム費用 | 約1,000万円(税込) |
|---|
| リフォーム箇所 | キッチン / ダイニング / リビング / 浴室 / 洗面 / トイレ / その他 《トクラス採用商品》キッチンBerry / バスルームevery |
|---|
評価コメント
お客様の目指す「かっこよく」「楽しく」というライフスタイルを、中古購入からリフォームまでワンストップで実現した作品です。お客様の頭の中にあるイメージをしっかり捉え、理想の形を作り上げることに成功しています。限られた予算の中、物件取得費用などでコスト削減を行い、メリハリ予算で水まわりに費用をしっかり掛けることができたことも、満足度の高さに繋がっています。




